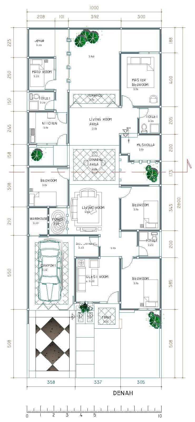
Denah Rumah 4 Kamar Tidur 1 Mushola

Denah rumah minimalis 69 dengan 3 kamar tidur. Desain rumah minimalis 4 kamar 1 mushola desain rumah ide denah rumah 3 kamar tidur 1 mushola yang elegan buat gambar denah rumah 4 kamar tidur 1 lantai 1 denah rumah desain rumah minimalis modern 717 meter 4 kamar mushola mau wujudkan rumah impian contek 5 denah rumah 3 kamar best desain rumah minimalis ukuran 1212 gubukhome denah rumah 3.

Desain Inspirasi Paling Populer Tahun Ini Berkaitan Dengan Denah

1 dapur merangkap ruang makan serta 1 kamar mandirumah ini cocok untuk keluarga yang memiliki 2 anak.

Denah rumah 4 kamar tidur 1 mushola. Rumah yang didirikannya akan secara khusus dulu membikin desain rumah agar kemudiannya dapat diciptakan untuk sarana promosi bagi pembelinya. Kamu perlu info inspirasi tentang denah rumah minimalis 4 kamar tidur 1 mushola 1 garasi. Kecuali itu anda dapat mencari rujukan teladan desain.

Contoh desain rumah 4 kamar tidur 1 mushola yang tawarkan desain rumah lazimnya yakni para pengusaha pada bagian perumahan. Denah rumah 4 kamar tidur 1 mushola seperti pada judul sub yang sudah anda lihat dibawah ini website desain minimalis terbaik ini memaparkan beberapa pilihan 17 gambar denah rumah 4 kamar minimalis dan modern. Denah rumah minimalis 4 kamar tidur 1 mushola 1 garasi.

Denah rumah 3 kamar tidur 1 mushola dalam rumah terbaru. Padahal dengan adanya tema maka anda bisa lebih membuat rumah anda terlihat hidup dengan tambahan furniture di dalamnya. Denah rumah 1 lantai 4 kamar tidur 1 mushola.

Kami menyusun berbagai image denah rumah termasuk denah rumah minimalis 4 kamar tidur 1 mushola 1 garasi yg nantinya bisa anda jadikan pegangan. Rumah minimalis modern 1 lantai 4 kamar tidur denah 8x19 meter modern house desain rumah minimalis 4 kamar tidur didesa memiliki garasi motorruang tamuruang keluarga2 wc ruang sholatdapur dan. Hal pertama yang perlu anda perhatikan ketika mengatur denah rumah minimalis adalah.

Rumah sederhana yang kecil biasanya hanya menyesuaikan pada luas tanah yang digunakan saja tanpa membuat tema yang pas. Bila anda kesulitan untuk merancang desain interior anda dapat mengaplikasikan jasa arsitek desain rumah untuk hasil yang maksimal pantas dengan keinginan anda. Semoga tulisan denah rumah minimalis 4 kamar tidur 1 mushola 1 garasi bermanfaat.

Desain denah rumah minimalis 4 kamar tidur 1 mushola terupdate mempunyai satu hunian serta denah rumah merupakan idaman setiap orang apalagi untuk kamu yang telah bekerja serta sudah memiliki pasangan. Namun mempunyai satu rumah serta denah rumah bukanlah hal yang mudah buat memiliki sebuah rumah serta denah rumah yang enak kalian membutuhkan banyak biaya apalagi harga tanah di perkotaan. Kecuali itu anda dapat mencari rujukan figur desain rumah yang.

Semoga tulisan denah rumah 1 lantai 4 kamar tidur 1 mushola berkhasiat. Bila anda kesusahan untuk merancang desain interior anda bisa menerapkan jasa arsitek desain rumah untuk hasil yang optimal cocok dengan kemauan anda.

Denah Desain Rumah Minimalis Modern 4 Kamar Tidur 3d 2 Jpg 714

10 Sketsa Rumah 4 Kamar Tidur Tertata Rapi Denah Rumah Desain

Kumpulan Denah Rumah Minimalis 4 Kamar Tidur 1 Mushola 1 Garasi

Denah Rumah 3 Kamar Tidur 1 Mushola Dalam Rumah Terbaru

Desain Rumah 3 Kamar Tidur

Kumpulan Denah Rumah 4 Kamar Tidur 1 Mushola Gambar Furniture

15 Desain Rumah Mewah 1 Lantai 4 Kamar Desain Rumah Modern

Denah Rumah 3 Kamar Tidur Garasi Mushola Gambar Denah Rumah 4

Lingkar Warna 11 Desain Denah Rumah Minimalis Dengan Mushola Di

67 Desain Rumah Minimalis Dengan Mushola Desain Rumah Minimalis


LihatTutupKomentar